Planowanie przestrzeni pod kominek to znacznie więcej niż tylko wybór estetycznego modelu. To kluczowy etap, który decyduje o bezpieczeństwie domowników, funkcjonalności wnętrza i zgodności z obowiązującymi przepisami. Precyzyjne określenie wymiarów samego urządzenia, a także niezbędnych stref bezpieczeństwa i wymogów technicznych, pozwoli na harmonijną i bezpieczną aranżację salonu. W tym artykule znajdziesz wszystkie niezbędne informacje, które pomogą Ci podjąć świadome decyzje.
Planując kominek, pamiętaj, że to nie tylko wymiary urządzenia, ale także niezbędne strefy bezpieczeństwa i wymogi techniczne.
- Fizyczne wymiary kominków (wolnostojące, do zabudowy, narożne) różnią się znacząco, wpływając na ogólne zapotrzebowanie na miejsce.
- Kluczowe są strefy bezpieczeństwa: minimum 80 cm od materiałów łatwopalnych oraz pas niepalnej podłogi o głębokości 30-50 cm przed paleniskiem.
- Należy uwzględnić wymogi techniczne, takie jak odpowiednia kubatura pomieszczenia (min. 4 m³ na 1 kW mocy, łącznie min. 30 m³) i nośność stropu, ponieważ kominek może ważyć ponad 500 kg.
- Od 1 stycznia 2026 roku w wielu regionach Polski legalne w użytkowaniu będą tylko kominki spełniające normy Ekoprojektu lub posiadające sprawność cieplną na poziomie co najmniej 80%.
- Nie zapomnij o przestrzeni na opał, akcesoria kominkowe oraz swobodny dostęp do obsługi i czyszczenia urządzenia.
Całkowita przestrzeń, jaką musimy wygospodarować na kominek, to nie tylko fizyczne wymiary samego wkładu czy piecyka wolnostojącego. To suma wielu czynników: gabarytów urządzenia, niezbędnych stref bezpieczeństwa, miejsca na komfortową obsługę i przechowywanie opału, a także uwzględnienie rygorystycznych wymogów technicznych i prawnych. Pamiętaj, że pominięcie któregokolwiek z tych elementów może prowadzić do poważnych problemów od zagrożenia pożarowego, przez trudności z użytkowaniem, aż po problemy z odbiorem instalacji czy nawet konieczność demontażu. Moim zdaniem, precyzyjne planowanie to podstawa sukcesu.

Wymiary kominków poznaj typy i ich zapotrzebowanie na miejsce
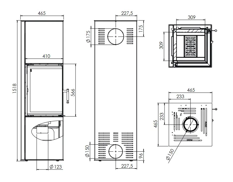
Zacznijmy od podstaw, czyli od samych wymiarów urządzeń. Kominki do zabudowy, czyli wkłady kominkowe wraz z obudową, zazwyczaj wymagają przestrzeni o szerokości 90-110 cm i głębokości 55-70 cm. Warto jednak wiedzieć, że na rynku dostępne są również wkłady typu „slim”, których głębokość może wynosić np. 46 cm, co jest świetnym rozwiązaniem, jeśli każdy centymetr ma znaczenie.
Kominki wolnostojące, potocznie nazywane „kozami”, są zazwyczaj bardziej kompaktowe. Ich typowe wymiary to 50-70 cm szerokości i 40-60 cm głębokości. Ich zaletą jest to, że zajmują mniej miejsca niż zabudowane kominki, a także są łatwiejsze w montażu, co czyni je idealnym wyborem do mniejszych przestrzeni lub jako dodatkowe źródło ciepła.
Jeśli marzysz o spektakularnym efekcie, kominki panoramiczne mogą mieć nawet 90-120 cm szerokości przy głębokości 50-70 cm. Z kolei kominki narożne, dzięki swojej konstrukcji, efektywnie wykorzystują kąty pomieszczenia. Ich boki mogą mieć 80-120 cm, a głębokość waha się w granicach 45-60 cm. To sprytne rozwiązanie, które pozwala zaoszczędzić cenną przestrzeń na ścianach.
Alternatywą są kominki gazowe i elektryczne, które charakteryzują się znacznie większą kompaktowością. Kominki gazowe mają zazwyczaj 70-100 cm szerokości, a elektryczne 50-80 cm szerokości. Biokominki są jeszcze mniejsze. Ich największą zaletą jest brak potrzeby podłączenia do komina, co daje ogromną swobodę w aranżacji i znacząco oszczędza miejsce.

Strefy bezpieczeństwa wokół kominka niezbędne odległości
Wymiary samego kominka to dopiero początek. Kluczowe dla bezpieczeństwa i zgodności z przepisami są strefy bezpieczeństwa. Od materiałów łatwopalnych, takich jak meble, zasłony czy drewniane elementy konstrukcyjne, należy zachować bezwzględne minimum 80 cm od frontu kominka. Ja osobiście, aby mieć pełen spokój, zawsze zalecam klientom zachowanie odległości 100-150 cm, zwłaszcza jeśli w domu są małe dzieci lub zwierzęta.
Równie ważne są odległości od ścian. Od ścian wykonanych z materiałów niepalnych, takich jak cegła czy beton, zaleca się zachowanie minimalnego odstępu około 20 cm. Ma to na celu zapewnienie odpowiedniej cyrkulacji powietrza. Producenci wkładów kominkowych często określają mniejsze odległości od zabudowy (np. 5-10 cm), jednak zawsze należy to sprawdzić w instrukcji. W przypadku ścian łatwopalnych konieczne jest zachowanie większej odległości (np. 20-50 cm) lub zastosowanie skutecznej izolacji termicznej, która zabezpieczy ścianę przed przegrzaniem.
Niezwykle istotny jest również pas z materiału niepalnego na podłodze przed kominkiem. Musi on mieć co najmniej 30-50 cm głębokości, licząc od drzwiczek kominka, i wystawać minimum 30 cm poza krawędzie drzwiczek. Do tego celu najczęściej stosuje się płytki ceramiczne, gres, blachę stalową lub szkło hartowane. To absolutna podstawa, aby iskry czy żar nie uszkodziły podłogi i nie doprowadziły do pożaru.
Coraz częściej widuję telewizory umieszczone nad kominkiem lub w jego bezpośrednim sąsiedztwie. Muszę podkreślić, że to rozwiązanie wymaga szczególnej ostrożności. Ciepło emitowane przez kominek może doprowadzić do przegrzania i uszkodzenia sprzętu RTV. Zawsze zalecam zachowanie bezpiecznej odległości i/lub zastosowanie odpowiedniej izolacji termicznej, aby chronić elektronikę. Warto to przemyśleć na etapie projektu.
Wymogi techniczne i konstrukcyjne co musisz wiedzieć przed instalacją?
Zanim zaczniesz marzyć o wieczorach przy blasku ognia, musisz zmierzyć się z kwestiami technicznymi. Kominki to urządzenia o znacznej wadze. Średniej wielkości kominek z wkładem i obudową waży około 500 kg, ale cięższe konstrukcje, np. z kamienia naturalnego, mogą przekraczać nawet 1000 kg! Dlatego konieczne jest sprawdzenie nośności stropu, zwłaszcza w starszych budynkach. Często niezbędne okazuje się wykonanie dodatkowego wzmocnienia, na przykład w postaci płyty fundamentowej, aby zapewnić stabilność i bezpieczeństwo.
Kolejnym ważnym aspektem jest kubatura pomieszczenia, w którym ma stanąć kominek. Zgodnie z normami, na każdy 1 kW mocy nominalnej wkładu kominkowego musi przypadać co najmniej 4 m³ kubatury pomieszczenia. Dodatkowo, minimalna całkowita kubatura pomieszczenia, w którym instalowany jest kominek, wynosi 30 m³. To bardzo ważne dla prawidłowego spalania i bezpieczeństwa użytkowania.
Nowoczesne kominki, zwłaszcza te z zamkniętą komorą spalania, wymagają doprowadzenia powietrza do spalania z zewnątrz. Należy to zaplanować już na etapie projektu, uwzględniając przebieg kanału wentylacyjnego. Ponadto, kominek powinien być zlokalizowany jak najbliżej istniejącego przewodu kominowego. Unikniesz w ten sposób skomplikowanych, długich i kosztownych podłączeń, które mogą negatywnie wpłynąć na ciąg kominowy i efektywność pracy urządzenia.
Przestrzeń użytkowa i logistyczna komfort i funkcjonalność
Komfort użytkowania kominka to nie tylko jego wygląd. To także odpowiednio zaplanowana przestrzeń wokół niego. Pamiętaj o miejscu na opał. Kosz z drewnem, choć dekoracyjny, musi znajdować się w bezpiecznej odległości od paleniska, aby nie stwarzać zagrożenia pożarowego. Zastanów się, gdzie będzie Ci najwygodniej przechowywać zapas drewna na bieżące palenie.
Nie zapomnij również o niewielkiej, ale niezbędnej przestrzeni na akcesoria kominkowe. Pogrzebacz, szczotka, łopatka, a także stojak na te narzędzia wszystko to musi mieć swoje miejsce w pobliżu kominka, aby było pod ręką, ale jednocześnie nie przeszkadzało i nie stanowiło zagrożenia.
Na koniec, ale nie mniej ważne: zapewnienie swobodnego dostępu do kominka. Musisz mieć wystarczająco dużo miejsca, aby komfortowo otwierać drzwiczki, dokładać drewno, wybierać popiół i czyścić urządzenie. Nic tak nie irytuje, jak ciasna przestrzeń, która utrudnia codzienne czynności. Przemyśl to, zanim kominek stanie na swoim miejscu.

Kominek w małym salonie sprytne rozwiązania
Jeśli dysponujesz małym salonem, nie musisz rezygnować z marzenia o kominku. Wspomniane wcześniej wkłady „slim” to doskonałe rozwiązanie. Ich mniejsza głębokość, np. 46 cm, pozwala zaoszczędzić cenną przestrzeń, a jednocześnie cieszyć się widokiem ognia. To kompromis, który moim zdaniem jest bardzo udany.
Kominki narożne to kolejny sposób na efektywne wykorzystanie przestrzeni. Umieszczając kominek w rogu pomieszczenia, optymalnie zagospodarowujesz trudny do aranżacji kąt, zwalniając jednocześnie główne ściany na inne meble czy dekoracje. To rozwiązanie, które sprawdza się w wielu projektach.
Warto również rozważyć alternatywy, takie jak kominki wiszące lub biokominki. Te rozwiązania nie wymagają masywnej zabudowy ani przewodu kominowego, co znacząco oszczędza miejsce i daje ogromną swobodę w aranżacji. Kominki wiszące, dzięki swojej lekkiej formie, mogą stać się prawdziwą ozdobą wnętrza, nie przytłaczając go.
Przepisy i normy co musisz wiedzieć o Ekoprojekcie i uchwałach antysmogowych?
Planując kominek, nie możesz ignorować przepisów. Kluczowym pojęciem jest Ekoprojekt (Ecodesign). To unijna dyrektywa, która określa minimalne normy emisji i sprawności energetycznej dla urządzeń grzewczych. W Polsce, od 1 stycznia 2026 roku, w wielu regionach, zgodnie z lokalnymi uchwałami antysmogowymi, legalne w użytkowaniu będą tylko kominki spełniające te normy lub posiadające sprawność cieplną na poziomie co najmniej 80%. Oznacza to, że starsze, mniej efektywne urządzenia będą musiały zostać wymienione lub zlikwidowane. To bardzo ważna data, o której należy pamiętać!
Dlatego też, zanim podejmiesz decyzję o zakupie, koniecznie sprawdź lokalne uchwały antysmogowe obowiązujące w Twojej gminie lub województwie. Mogą one wprowadzać dodatkowe ograniczenia, na przykład dotyczące rodzaju paliwa, które można spalać, czy całkowity zakaz użytkowania kominków w określonych okresach. Informacje te są zazwyczaj dostępne na stronach urzędów marszałkowskich.
Mimo tych regulacji, inwestycja w kominek wciąż się opłaca, ale tylko w nowoczesne, zgodne z przepisami urządzenia. Nowoczesne wkłady kominkowe są znacznie bardziej efektywne i ekologiczne. Pamiętaj, że kontrole będą obejmować wszystkie urządzenia, nawet te używane rekreacyjnie. Dlatego świadomy wybór kominka zgodnego z Ekoprojektem to nie tylko kwestia ekologii, ale także uniknięcia kosztownych konsekwencji w przyszłości. Moim zdaniem, warto postawić na przyszłościowe rozwiązania.
