Marzysz o pięknej i funkcjonalnej łazience, ale wizja zatrudniania architekta i ponoszenia dodatkowych kosztów wydaje Ci się przytłaczająca? Mam dla Ciebie świetną wiadomość! Dzięki darmowym programom do projektowania wnętrz, możesz samodzielnie stworzyć wymarzoną przestrzeń, bez wydawania ani złotówki na specjalistów i bez posiadania zaawansowanej wiedzy.
Darmowe programy do projektowania łazienki stwórz wymarzone wnętrze bez architekta!
- Dostępność różnorodnych darmowych programów (online i do pobrania), idealnych dla amatorów.
- Kluczowe funkcje, na które warto zwrócić uwagę przy wyborze narzędzia (np. widok 3D, biblioteki produktów).
- Przewodnik krok po kroku przez proces projektowania, od pomiarów po wizualizację.
- Praktyczne porady, jak unikać typowych błędów projektowych.
- Możliwość stworzenia listy zakupów i oszacowania budżetu na podstawie gotowego projektu.
Samodzielne projektowanie łazienki: czy warto i co zyskujesz?
Z mojego doświadczenia wynika, że samodzielne projektowanie łazienki to decyzja, która przynosi wiele korzyści. Nie tylko pozwala znacząco obniżyć koszty związane z aranżacją wnętrza, ale przede wszystkim daje Ci pełną kontrolę nad każdym detalem. To Ty decydujesz o układzie, kolorach, materiałach i funkcjonalności, tworząc przestrzeń idealnie dopasowaną do Twoich potrzeb i gustu.
Oszczędność pieniędzy i pełna kontrola nad projektem
Koszty związane z usługami architekta wnętrz potrafią być naprawdę wysokie, a darmowe programy do projektowania łazienki całkowicie niwelują tę barierę. Dzięki nim możesz swobodnie eksperymentować z różnymi układami, stylami i elementami wyposażenia, aż do momentu, gdy uzyskasz projekt, który w 100% Ci odpowiada. Masz pełną swobodę w dopasowywaniu każdego detalu, od układu płytek, przez wybór armatury, aż po rozmieszczenie oświetlenia.
Jak darmowe programy zmieniły zasady gry w aranżacji wnętrz?
Darmowe narzędzia do projektowania wnętrz zrewolucjonizowały sposób, w jaki podchodzimy do aranżacji. Kiedyś profesjonalne wizualizacje były domeną architektów, dziś każdy, kto ma dostęp do komputera i internetu, może stworzyć realistyczny projekt swojej łazienki. Te programy są często niezwykle intuicyjne i łatwe w obsłudze, co sprawia, że nawet osoby bez żadnego doświadczenia w projektowaniu mogą osiągnąć naprawdę imponujące rezultaty.
Czego potrzebujesz, zanim uruchomisz program? Lista startowa
Zanim zasiądziesz do komputera i zaczniesz projektować, warto się odpowiednio przygotować. To klucz do sukcesu i uniknięcia frustracji. Oto moja lista startowa:
- Dokładne pomiary pomieszczenia: Zmierz długość, szerokość i wysokość łazienki. To absolutna podstawa.
- Naniesienie lokalizacji okien i drzwi: Zaznacz ich wymiary i odległości od ścian.
- Zlokalizowanie przyłączy wodno-kanalizacyjnych i elektrycznych: To bardzo ważne, ponieważ często są to stałe punkty, które wpływają na układ urządzeń.
- Ogólne wyobrażenie o Twoich potrzebach: Zastanów się, czy wolisz wannę czy prysznic, ile miejsca potrzebujesz na przechowywanie, czy planujesz pralkę w łazience.

Najlepsze darmowe programy do projektowania łazienki w 2026 roku
Rynek darmowych programów do projektowania wnętrz jest naprawdę bogaty, co z jednej strony daje duże możliwości, z drugiej może nieco przytłaczać. Sama często testuję różne narzędzia i mogę śmiało powiedzieć, że znajdziesz coś dla siebie, niezależnie od tego, czy szukasz prostego planera online, czy czegoś z nieco większymi możliwościami. Wiele z nich oferuje realistyczne wizualizacje 3D i dostęp do szerokiej gamy obiektów, co pozwala na stworzenie naprawdę szczegółowego projektu.
Narzędzia online vs. programy do pobrania co wybrać?
Decyzja między programem online a tym do pobrania zależy od Twoich preferencji. Narzędzia online, takie jak Planner 5D czy Roomstyler, są niezwykle wygodne nie wymagają instalacji, możesz z nich korzystać z każdego miejsca i na każdym urządzeniu z dostępem do internetu. Programy do pobrania (np. Sweet Home 3D) często oferują nieco więcej funkcji i mogą być stabilniejsze, ale dla amatora, który chce szybko i sprawnie zaprojektować łazienkę, te online są zazwyczaj wygodniejszym i wystarczającym rozwiązaniem.
Planner 5D i Roomstyler: Uniwersalne kombajny dla początkujących
Jeśli dopiero zaczynasz swoją przygodę z projektowaniem, Planner 5D i Roomstyler 3D Home Planner to strzał w dziesiątkę. Są to uniwersalne i niezwykle intuicyjne narzędzia, które prowadzą użytkownika za rękę. Oferują bogate biblioteki obiektów (od mebli, przez armaturę, po dekoracje), a co najważniejsze, umożliwiają łatwe przełączanie się między widokiem 2D a realistycznym widokiem 3D. Dzięki nim szybko zobaczysz, jak Twoje pomysły prezentują się w przestrzeni.
IKEA Home Planner: Zaprojektuj łazienkę z gotową listą zakupów
Dla miłośników mebli i akcesoriów z IKEA, IKEA Home Planner jest idealnym rozwiązaniem. To narzędzie dedykowane do projektowania wnętrz z wykorzystaniem produktów dostępnych w ofercie szwedzkiego giganta. Jego ogromną zaletą jest automatyczne generowanie listy zakupów na podstawie Twojego projektu, co niesamowicie ułatwia późniejsze kompletowanie wyposażenia i szacowanie kosztów.
Planery od producentów (Koło, Cersanit): Projektuj z realnymi produktami
Wielu producentów armatury i ceramiki, takich jak Koło czy Cersanit, oferuje własne, darmowe planery online. Ich główną zaletą jest to, że masz dostęp do bibliotek realnych produktów z ich oferty. To ogromne ułatwienie, ponieważ od razu widzisz, jak konkretna umywalka czy wanna będzie wyglądać w Twojej łazience i możesz precyzyjniej zaplanować zakupy. Pamiętaj jednak, że jesteś wówczas ograniczona do asortymentu danej marki.
Na co zwrócić uwagę przy wyborze programu? Kluczowe funkcje
Wybierając program dla siebie, warto zwrócić uwagę na kilka kluczowych aspektów, które znacząco ułatwią Ci pracę i zapewnią satysfakcjonujące efekty:
- Intuicyjny interfejs i łatwość obsługi: Program powinien być prosty w nawigacji, abyś mogła skupić się na projektowaniu, a nie na nauce obsługi.
- Dostępność widoku 3D i realistycznej wizualizacji: To podstawa, aby móc ocenić projekt w przestrzeni i zobaczyć, jak będzie wyglądać po realizacji.
- Bogata biblioteka obiektów (meble, armatura, płytki): Im więcej dostępnych elementów, tym większe możliwości aranżacyjne.
- Możliwość zapisywania i edycji projektu: Będziesz chciała wracać do projektu, wprowadzać zmiany i porównywać różne wersje.
- Dostępność online (brak konieczności instalacji): Dla wielu osób to ogromna wygoda i oszczędność miejsca na dysku.
- Polska wersja językowa (jeśli dostępna): Ułatwia to korzystanie z programu i zrozumienie wszystkich funkcji.

Projektowanie łazienki krok po kroku: od pomysłu do wizualizacji
Projektowanie łazienki, choć na pierwszy rzut oka może wydawać się skomplikowane, w rzeczywistości jest procesem, który dzięki darmowym programom i kilku podstawowym zasadom, staje się prostym i przyjemnym zadaniem. Pamiętaj, że każdy, nawet najbardziej doświadczony projektant, zaczyna od tych samych podstawowych kroków.
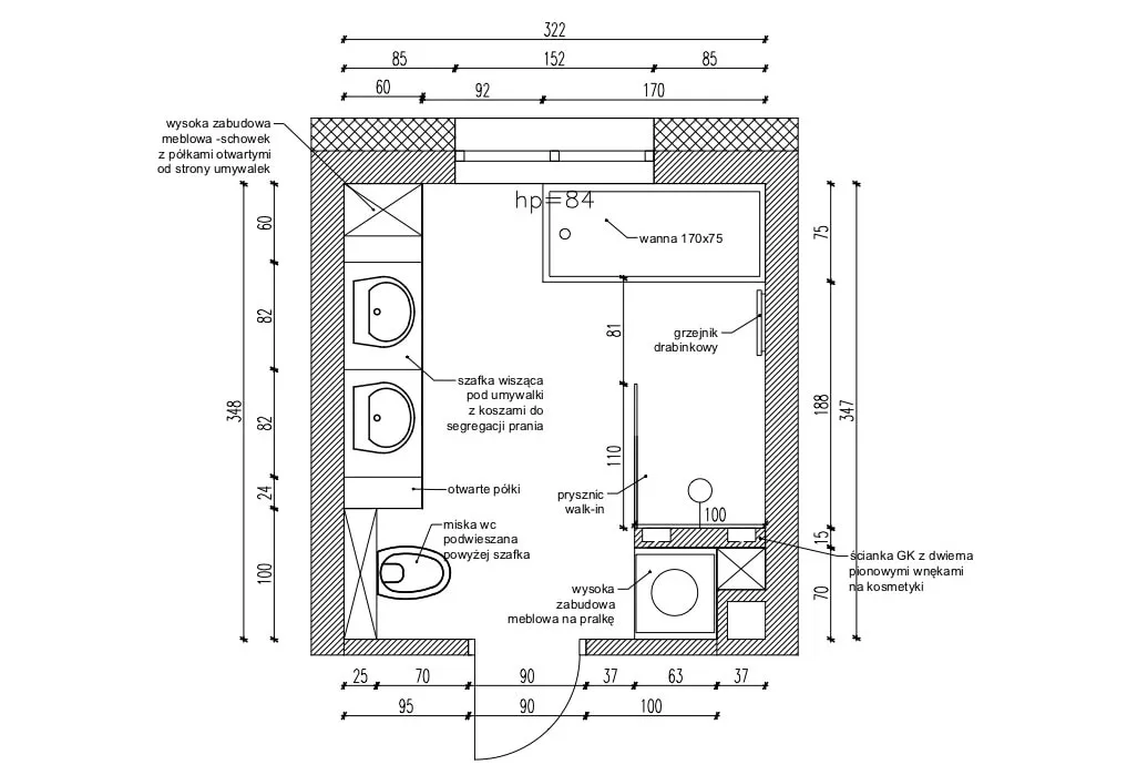
Krok 1: Precyzyjny pomiar to podstawa jak uniknąć kosztownych pomyłek?
Zawsze powtarzam moim klientom, że dokładne pomiary to absolutna podstawa każdego udanego projektu. Błędy na tym etapie mogą prowadzić do poważnych problemów w realizacji, a nawet do niemożności zmieszczenia wybranych elementów. Zmierz dokładnie długość, szerokość i wysokość pomieszczenia. Nie zapomnij o odległościach od ścian do okien, drzwi, a także o lokalizacji wszystkich przyłączy wodno-kanalizacyjnych i elektrycznych. Zapisz wszystko na kartce lub w aplikacji im dokładniej, tym lepiej.
Krok 2: Wprowadzanie wymiarów i kluczowych elementów (drzwi, okna, przyłącza)
Kiedy masz już wszystkie wymiary, czas przenieść je do programu. Większość narzędzi pozwala na łatwe wprowadzenie wymiarów ścian i automatyczne stworzenie rzutu pomieszczenia. Następnie dodaj stałe elementy, takie jak drzwi i okna, zaznaczając ich dokładne położenie i rozmiary. Kluczowe jest również precyzyjne umieszczenie przyłączy wodno-kanalizacyjnych i elektrycznych to one często dyktują, gdzie mogą znaleźć się umywalka, WC czy prysznic.
Krok 3: Planowanie układu funkcjonalnego gdzie postawić wannę, a gdzie WC?
To jest etap, na którym zaczyna się prawdziwa zabawa! Rozmieszczaj główne elementy łazienki wannę lub prysznic, WC, umywalkę, a jeśli planujesz, także pralkę. Pamiętaj o ergonomii i zachowaniu minimalnych odległości między urządzeniami. Na przykład, przed wanną powinieneś zostawić około 70x100 cm wolnej przestrzeni, a przed umywalką 65x110 cm. Drzwi kabiny prysznicowej czy szafek nie powinny kolidować z innymi elementami. Eksperymentuj z różnymi układami, aż znajdziesz ten najbardziej funkcjonalny i komfortowy.
Krok 4: Zabawa w dekoratora dobieranie płytek, kolorów i mebli
Teraz możesz puścić wodze fantazji i zająć się wykańczaniem wnętrza. Dobieraj materiały płytki na ściany i podłogi, kolory farb, a także meble łazienkowe. Zachęcam do eksperymentowania z różnymi stylami, teksturami i wzorami. Pamiętaj jednak, aby zachować spójność. Często radzę, by stawiać na ponadczasowe rozwiązania, takie jak jasne kolory, naturalne materiały (drewno, kamień), i unikać chwilowych trendów, które mogą szybko się znudzić. Programy oferują szerokie biblioteki, więc na pewno znajdziesz coś dla siebie.
Krok 5: Generowanie wizualizacji 3D i wirtualny spacer po nowej łazience
Ostatni, ale jakże satysfakcjonujący etap to generowanie wizualizacji 3D. Większość darmowych programów pozwala na stworzenie realistycznych obrazów, a nawet na wirtualny spacer po zaprojektowanej łazience. Dzięki temu możesz zobaczyć, jak będzie wyglądać Twoja nowa przestrzeń z każdej perspektywy. To doskonały moment, aby ocenić funkcjonalność, estetykę i wprowadzić ewentualne poprawki, zanim podejmiesz ostateczne decyzje zakupowe i rozpoczniesz remont.
Uniknij błędów: 7 pułapek w samodzielnym projektowaniu łazienki
Świadomość typowych błędów to klucz do stworzenia nie tylko estetycznej, ale przede wszystkim funkcjonalnej i bezpiecznej łazienki. Jako Róża Lewandowska, widziałam już wiele projektów i wiem, na co zwrócić szczególną uwagę, aby uniknąć kosztownych pomyłek. Pamiętaj, że nawet najpiękniejsza łazienka, jeśli jest niefunkcjonalna, szybko stanie się źródłem frustracji.
Błąd #1: Ignorowanie ergonomii czyli dlaczego brakuje Ci miejsca?
To jeden z najczęstszych błędów. Brak odpowiednich odległości między urządzeniami sprawia, że łazienka, nawet duża, staje się niewygodna w użytkowaniu. Pamiętaj o minimalnych przestrzeniach: 70x100 cm wolnej przestrzeni przed wanną to podstawa, podobnie jak 65x110 cm przed umywalką. Niezachowanie tych zasad sprawi, że będziesz się potykać, a otwieranie szafek czy drzwi prysznicowych będzie kolidować z innymi elementami.
Błąd #2: Jedna lampa na suficie to za mało planowanie oświetlenia strefowego
Jedna lampa sufitowa to zdecydowanie za mało, aby odpowiednio oświetlić łazienkę. Potrzebujesz oświetlenia strefowego, które zapewni komfort i bezpieczeństwo. Pomyśl o dobrym oświetleniu przy lustrze (najlepiej po bokach, aby uniknąć cieni), dodatkowym źródle światła nad prysznicem czy wanną, a także o delikatnym świetle nastrojowym, które pozwoli na relaks.
Błąd #3: "Gdzie to wszystko schować?" problem braku miejsca do przechowywania
Łazienka to miejsce, gdzie gromadzimy mnóstwo rzeczy kosmetyki, ręczniki, środki czystości. Niewystarczająca ilość miejsca do przechowywania szybko prowadzi do bałaganu. Zaplanuj szafki podumywalkowe, zabudowy na wymiar, półki wnękowe lub wiszące szafki. Wykorzystaj każdy centymetr, aby utrzymać porządek i estetykę.
Błąd #4: Zbyt płytka umywalka i inne wpadki z armaturą
Wybór armatury i ceramiki to nie tylko kwestia estetyki, ale przede wszystkim praktyczności. Zbyt płytka umywalka może powodować chlapanie wody na podłogę, a nieodpowiednio dobrana bateria utrudniać codzienne czynności. Zwracaj uwagę na wymiary, głębokość i funkcjonalność produktów. Przeczytaj opinie innych użytkowników i nie bój się pytać sprzedawców o porady.
Błąd #5: Chaos kolorystyczny i nadmiar wzorów jak zachować harmonię?
Łazienka powinna być miejscem relaksu, a chaos kolorystyczny i nadmiar wzorów mogą działać przytłaczająco. Staraj się stosować spójną paletę barw, najlepiej bazując na 2-3 kolorach. Umiar w dekoracjach i wzorach płytek sprawi, że wnętrze będzie harmonijne, eleganckie i ponadczasowe. Pamiętaj, że mniej często znaczy więcej.
Błąd #6: Śliska sprawa dlaczego płytki antypoślizgowe są tak ważne?
Bezpieczeństwo w łazience to priorytet, zwłaszcza jeśli w domu są dzieci lub osoby starsze. Mokra podłoga to prosta droga do wypadku. Dlatego wybór płytek antypoślizgowych jest absolutnie kluczowy. Zwróć uwagę na klasę antypoślizgowości (oznaczoną jako R) przy zakupie płytek podłogowych. To mała rzecz, która może uratować przed poważnym urazem.
Błąd #7: Niewłaściwa wentylacja cichy wróg Twojej łazienki
Niewłaściwa wentylacja to cichy, ale bardzo groźny wróg Twojej łazienki. Brak odpowiedniej cyrkulacji powietrza prowadzi do gromadzenia się wilgoci, co z kolei sprzyja rozwojowi pleśni i grzybów. To nie tylko problem estetyczny, ale przede wszystkim zdrowotny. Upewnij się, że system wentylacyjny jest sprawny, a jeśli to konieczne, zainwestuj w dodatkowy wentylator. Regularne wietrzenie to podstawa.
Przeczytaj również: Łazienka 10m2: Stwórz luksusowy pokój kąpielowy z wanną i prysznicem
Od projektu do realizacji: co zrobić z gotowym planem łazienki?
Gratuluję! Masz już gotowy projekt swojej wymarzonej łazienki. To ogromny krok w stronę realizacji. Teraz najważniejsze jest, aby ten wirtualny plan przekształcić w rzeczywistą, funkcjonalną przestrzeń. Pokażę Ci, jak efektywnie wykorzystać swój projekt i co zrobić, aby proces remontu przebiegł gładko.
Jak zapisać i wykorzystać swój projekt?
Po zakończeniu pracy w programie, zapisz swój projekt w kilku formatach najczęściej dostępne są PDF, JPG lub PNG. Wydrukuj go lub zachowaj w formie cyfrowej. Taki gotowy plan to Twoje narzędzie komunikacji. Możesz go pokazać wykonawcy, aby precyzyjnie omówić zakres prac, przedstawić w sklepie z wyposażeniem łazienek, aby łatwiej dobrać produkty, a także wykorzystać do konsultacji z rodziną czy przyjaciółmi. To Twój przewodnik przez cały proces remontu.
Tworzenie listy zakupów i szacowanie budżetu na podstawie wizualizacji
Jedną z największych zalet samodzielnego projektowania jest możliwość stworzenia precyzyjnej listy zakupów i oszacowania budżetu. Na podstawie wizualizacji 3D możesz dokładnie wypisać wszystkie potrzebne elementy: płytki (z uwzględnieniem zapasu na docinki!), armaturę, ceramikę, meble, oświetlenie, a nawet drobne akcesoria. Niektóre programy, jak wspomniałam wcześniej, automatycznie generują takie listy, co jest ogromnym ułatwieniem. Dzięki temu unikniesz nieprzyjemnych niespodzianek finansowych.
Kiedy mimo wszystko warto skonsultować się z fachowcem?
Mimo że samodzielne projektowanie daje ogromną satysfakcję i kontrolę, istnieją sytuacje, w których konsultacja z fachowcem jest po prostu niezbędna. Jeśli masz do czynienia ze skomplikowanymi instalacjami, planujesz nietypowe rozwiązania techniczne, a może po prostu masz wątpliwości co do pewnych aspektów konstrukcyjnych nie wahaj się poprosić o pomoc architekta wnętrz lub doświadczonego wykonawcę. Nawet krótka konsultacja może rozwiać Twoje obawy i uchronić przed kosztownymi błędami w realizacji. Pamiętaj, że bezpieczeństwo i trwałość są najważniejsze.
